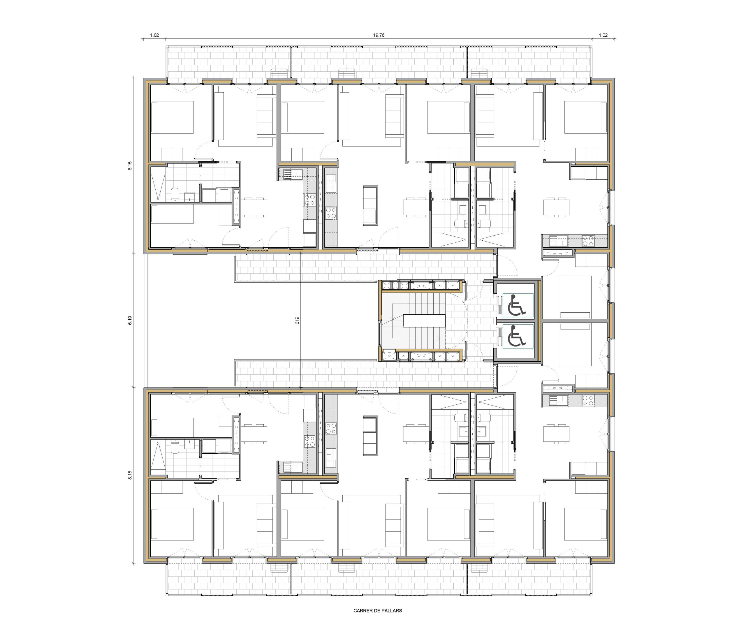
42 HOUSING IN SANT MARTÍ

Location

Sant Martí District, Barcelona

Years

2022

Developer

Municipal Institute of Housing and Renovation of Barcelona

Built area

3431.97 m²

Design and site management

Fabregat&Fabregat arquitectes scp